
Project: Svako dobro Healthy bar
Description: Interior design. Hospitality. Caffe
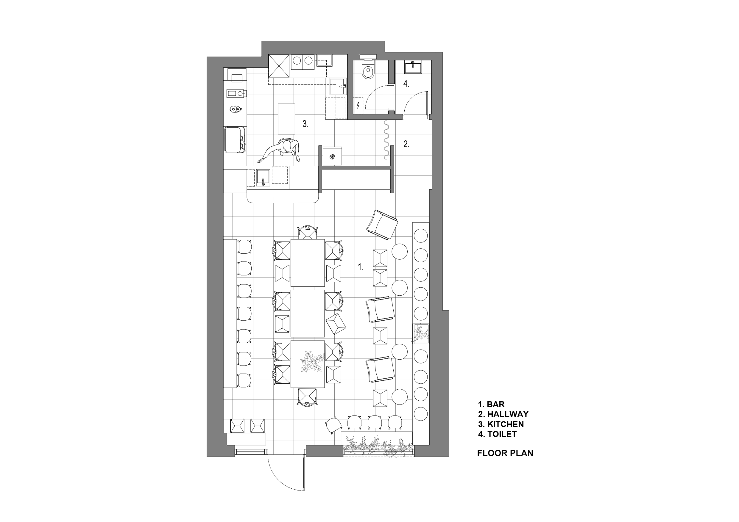
Location: Dorćol, Belgrade, Serbia
Size: 70m²
Year: 2024
Status: Built
Project owner: MAIN architects
Author: Nikola Ivkovic, Jovana Vasić
Lead architect: Nikola Ivković
Design team: Nikola Ivković, Jovana Vasić, Katarina Vukašinović, Matea Prokić, Sonja Đorđević, Sonja Lazić, Aleksandra Kalezić, Jovana Nedeljković
Interior 3D visualisation: Jovana Vasić
Photo: Milica Belojica