
Description: Reconstruction and addition / architecture, structural and landscape design
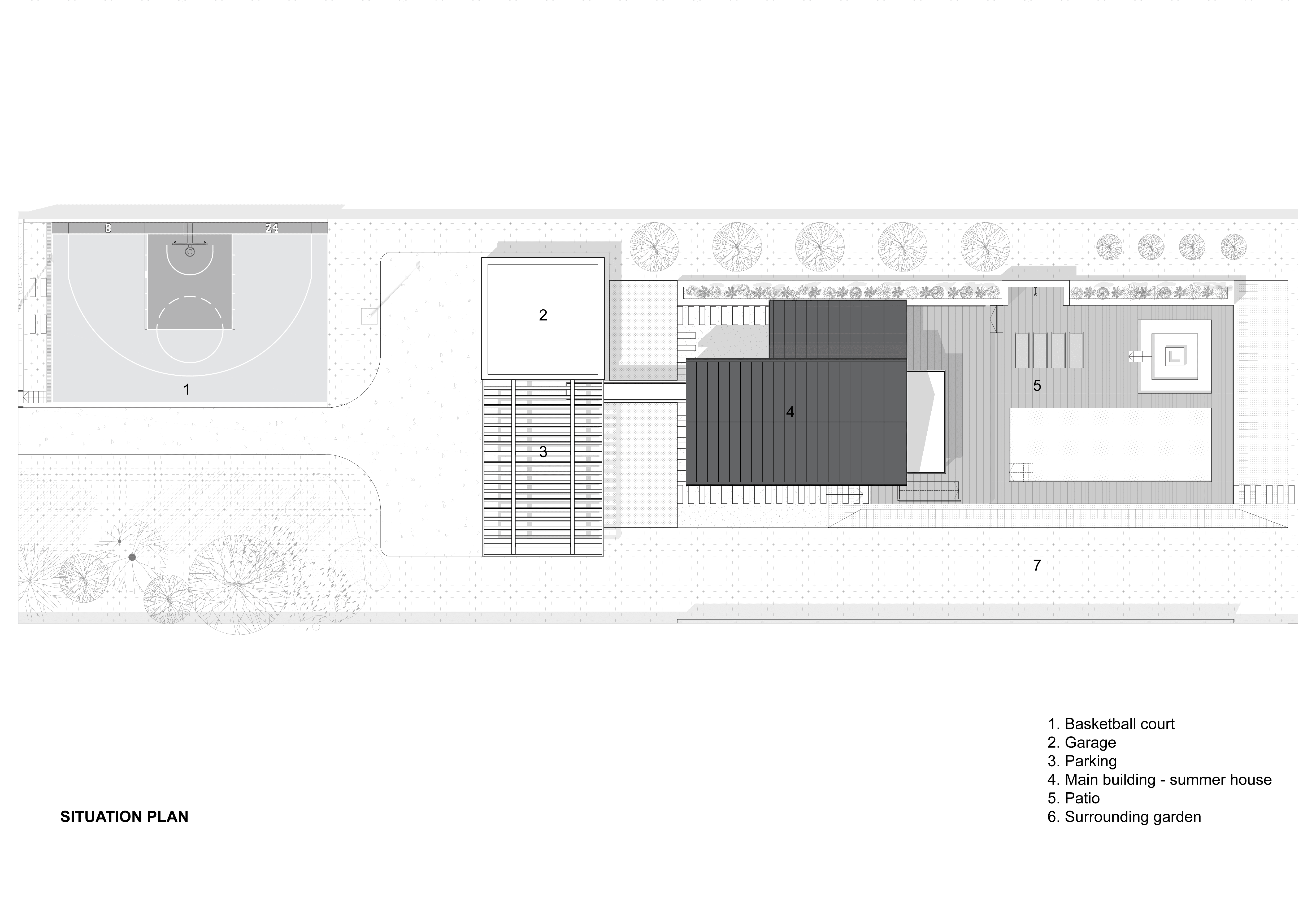
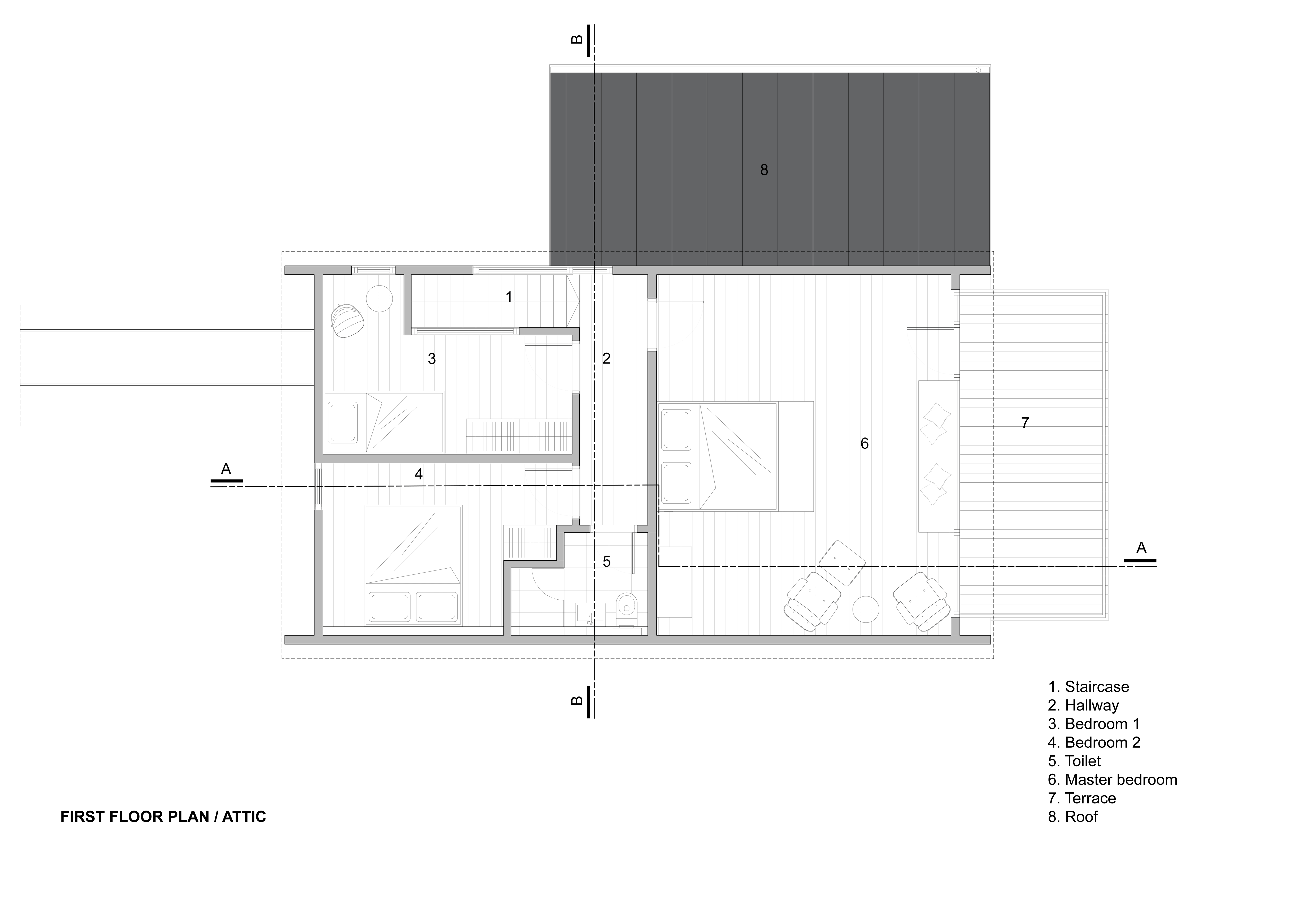
Location: Pavlovac Lake, Serbia
Lot size / building size: 4800m2 / 215m2
Year: 2020
Status: Under construction
Author: Nikola Ivković, Marko Matejić and Stefan Đorđević
Lead architect: Nikola Ivković
Design team: Nikola Ivkovic, Marko Matejić, Stefan Đorđević and Elena Džinović
3D visualisation: Nikola Ivković and Stefan Đorđević