
Description: Shell and core – TV studio and office – interior and MEP design
Location: Ljubljana, Slovenia
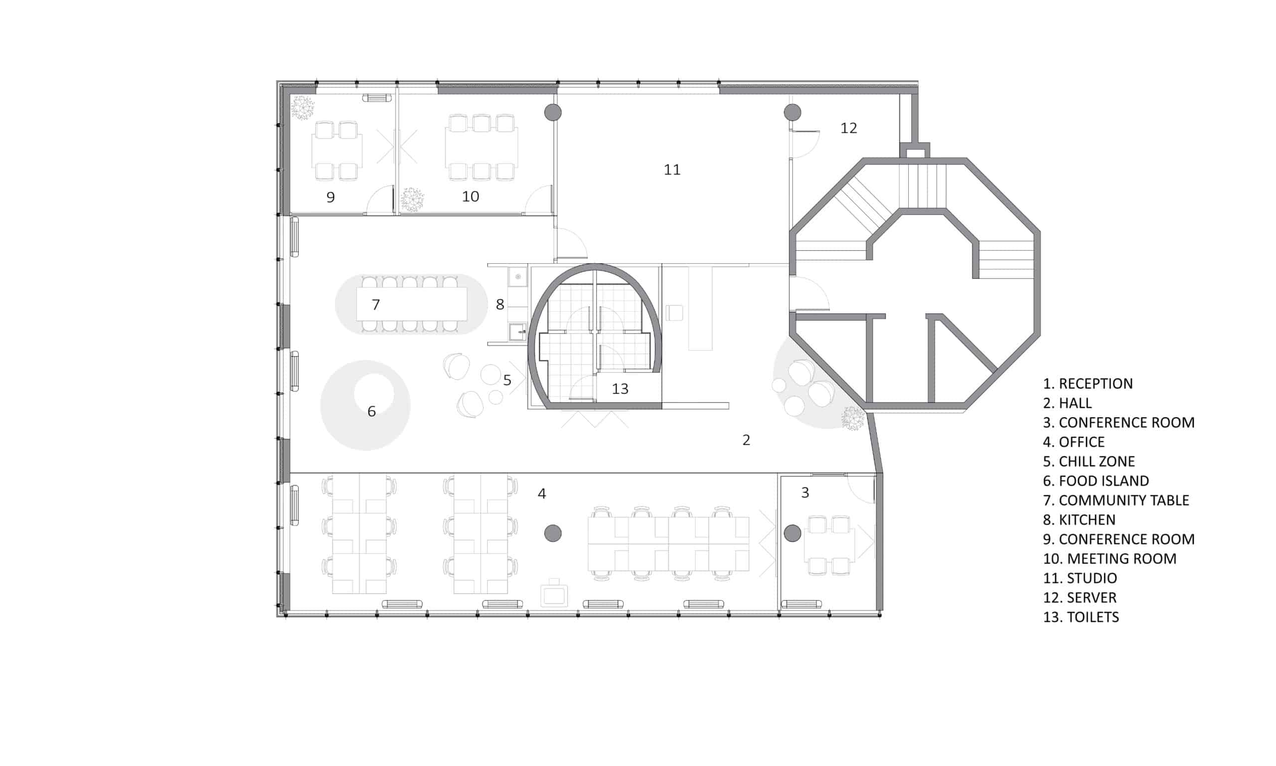
Size: 270m²
Year: 2021
Status: Built
Author: Nikola Ivkovic, Stefan Đorđević and Jovana Vasić
Lead architect: Nikola Ivković
Design team: Nikola Ivkovic, Stefan Đorđević and Jovana Vasić
Interior 3D visualisation: Stefan Đorđević and Jovana Vasić