
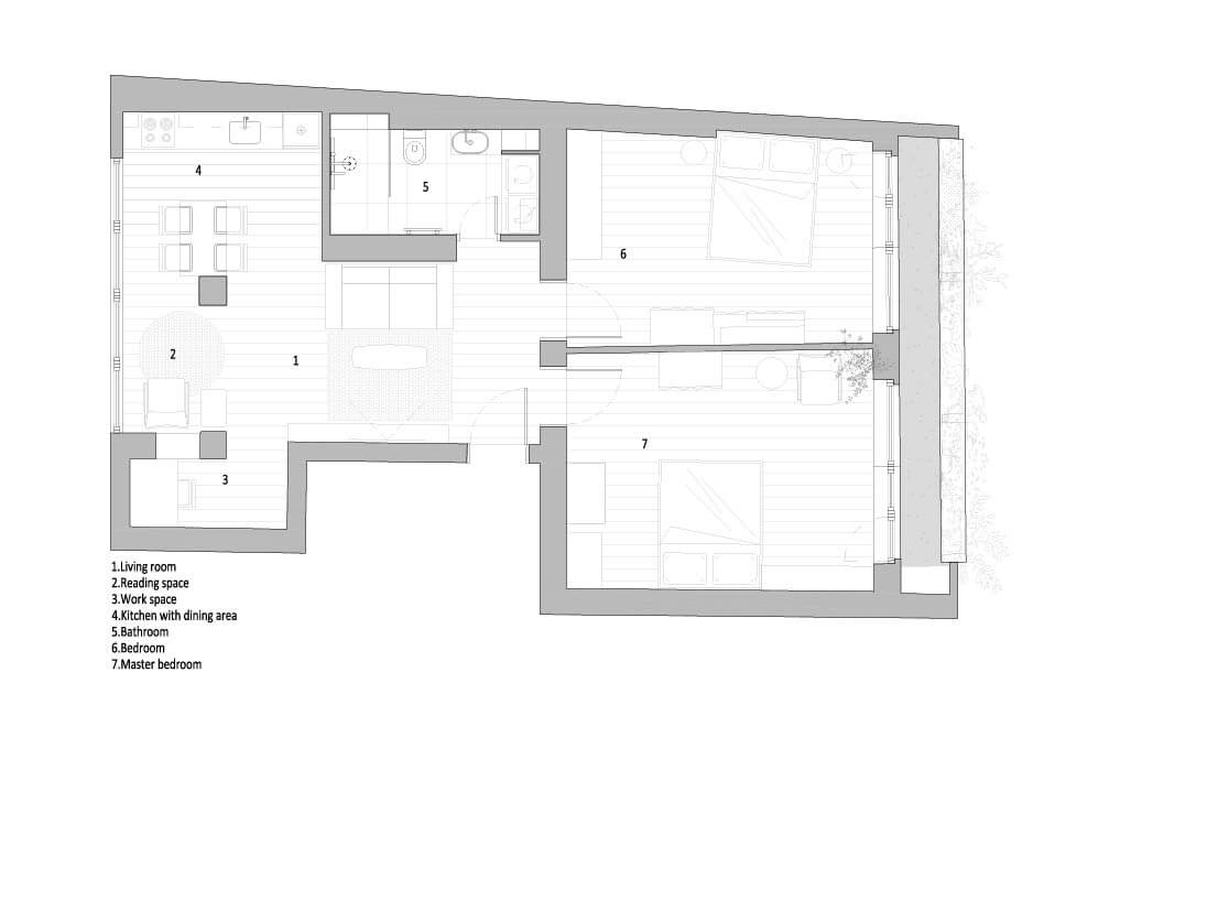
Description: Apartment reconstruction
Location: Belgrade, Serbia
Size: 80m2
Year: 2021
Status: Built
Author: Marko Matejić
Lead architect and project manager: Marko Matejić
Interior design team: Marko Matejić, Daniela Grčić, Srdjan Borisavljević, Katarina Dimitrijević
Interior 3D visualisation: Daniela Grčić, Srdjan Borisavljević