
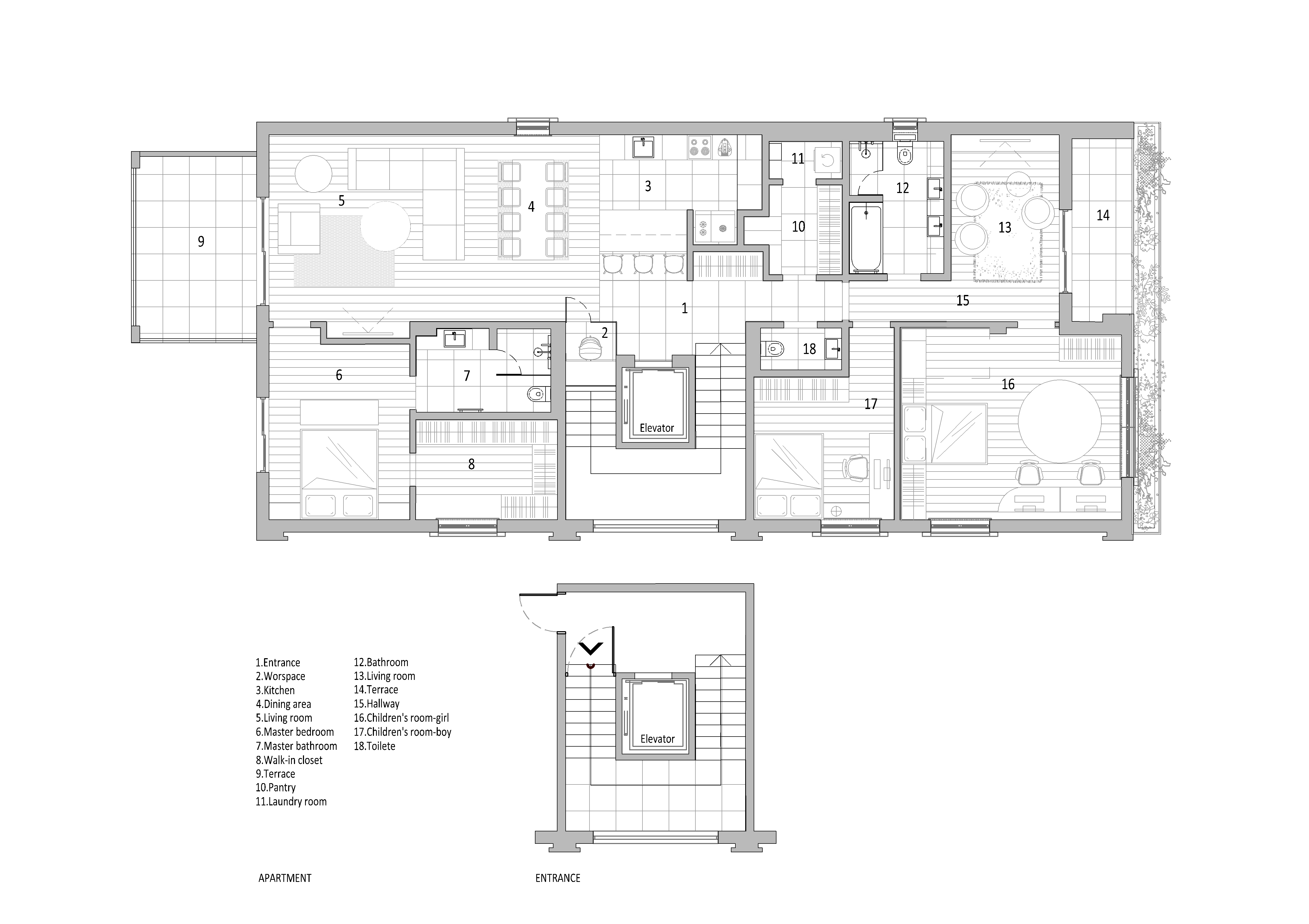
Description: Apartment reconstruction – interior design
Location: Novi Sad, Serbia
Size: 210m2
Year: 2021
Status: Built
Author: Nikola Ivković and Jovana Vasic
Lead architect: Nikola Ivković
Interior design team: Nikola Ivković, Jovana Vasić and Katarina Dimitrijević
Interior 3D visualisation: Jovana Vasić and Katarina Dimitrijević